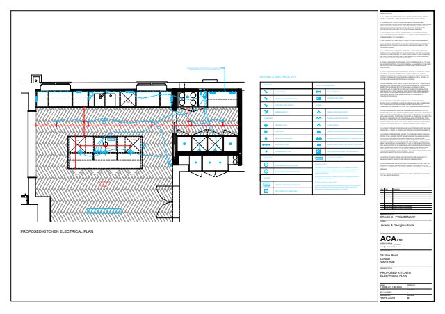
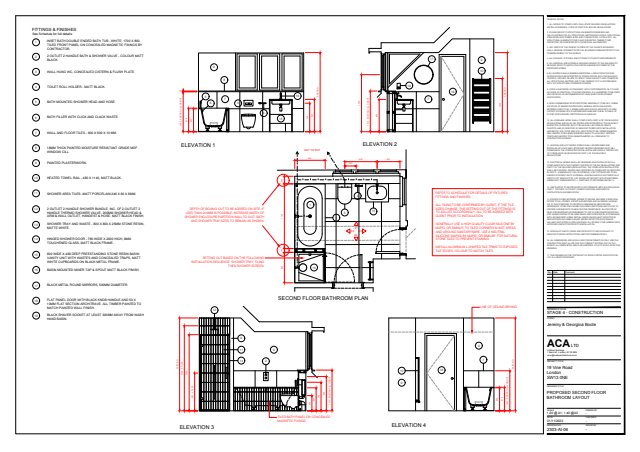
INFO

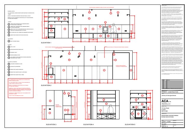
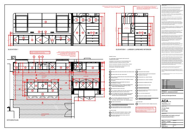
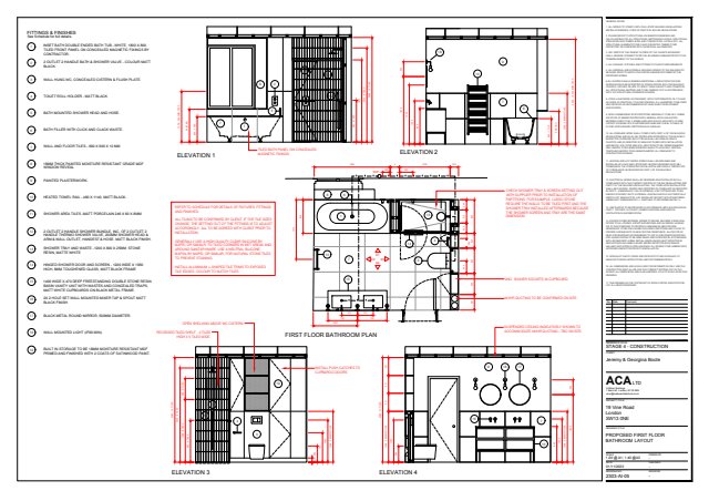
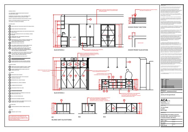
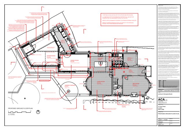
Comprehensive refurbishment of a 1930s house and remodelling of an existing extension within a conservation area. The project reconfigures the ground floor to create a generous kitchen, dining and entertaining space, alongside redesigned bathrooms and improved internal layouts throughout.

The existing structure was largely retained, with beam-and-block floors and steelwork reused and upgraded with new insulation, roofing and cladding. The façades were carefully reworked with only a modest increase in floor area. A strong emphasis was placed on environmental performance, with the project exceeding Building Regulations through the use of woodfibre insulation, timber-framed triple-glazed doors, and a fabric-first approach. The house is designed to be heat-pump ready, with underfloor heating throughout.


Role: Concept design through to detailed design and site monitoring.