INFO

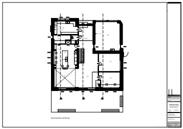
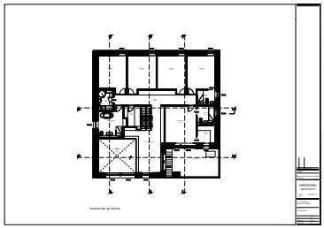
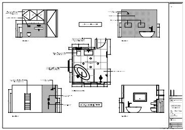
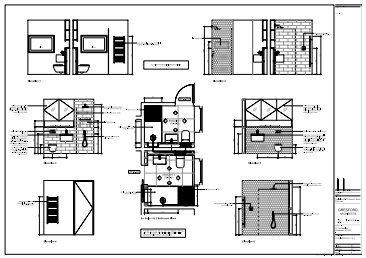
A new-build modernist certified Passivhaus replacing a former bungalow within a traditional suburban context. The simple two-storey rectangular form adopts a fabric-first approach to deliver high-performance, low-energy family living, constructed using modern and innovative sustainable methods. The house is built from a super-insulated off-site manufactured timber frame, minimising embodied carbon, construction time and on-site disruption.


Role: Worked with Gresford Architects at detailed design and tender stages.