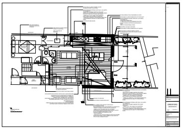
INFO

A single-storey rear and side extension featuring diamond-shaped brick cladding, an exposed plywood and timber roof structure, and a continuous ribbon window and rooflight. The material palette and detailing emphasise the irregular geometry of the form, which was carefully proportioned to respond to local planning constraints.

The extension retains a modest external lightwell and, together with internal reconfiguration, transforms the existing two-bedroom flat into a well-proportioned three-bedroom home.


Role: Worked with Gresford Architects across RIBA Stages 0–4, contributing to concept design, planning, detailed design and technical development.