INFO

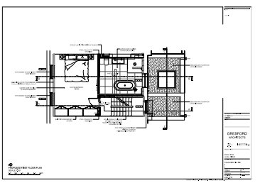
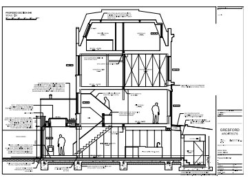
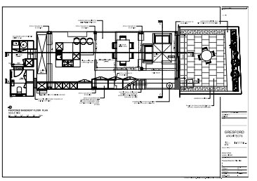
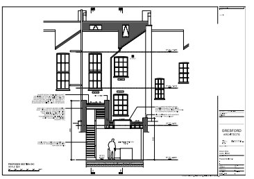
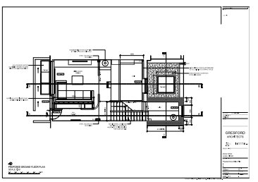
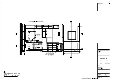
Renovation and extension of a Victorian terraced house behind a retained historic shopfront. The scheme introduces a new central atrium created by removing the former rear reception room, bringing daylight deep into the plan and visually connecting the ground floor with the reconfigured living spaces below. Extensive remodelling and a contemporary rear extension provide improved, fluid family living accommodation, with light drawn down through the atrium and enlarged rooflights.


Role: Worked with Gresford Architects to refine the design and produce tender drawings and specifications.