INFO

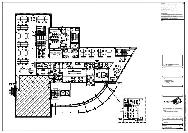
Cat B fit-out within a new-build, BREEAM Excellent–rated office development for KPMG in Cardiff. The project involved the design of a high-quality client-facing workplace, including reception, meeting suites, open-plan office space and breakout areas, aligned with KPMG’s corporate standards and sustainability objectives.


Role: Produced the winning design bid, developed the design brief with the client, and delivered the scheme to tender. Reviewed and monitored the contractor’s detailed design proposals and site works to ensure design quality was maintained.