INFO

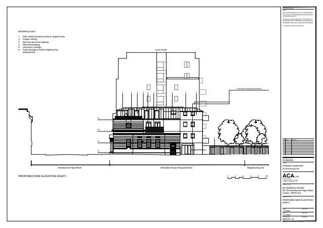
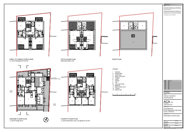
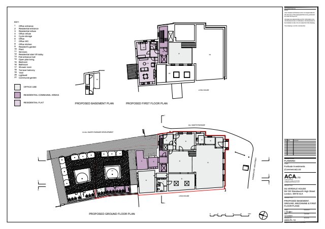
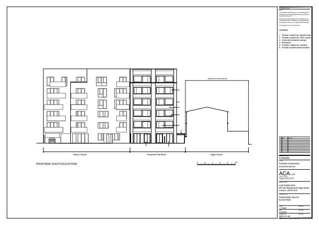
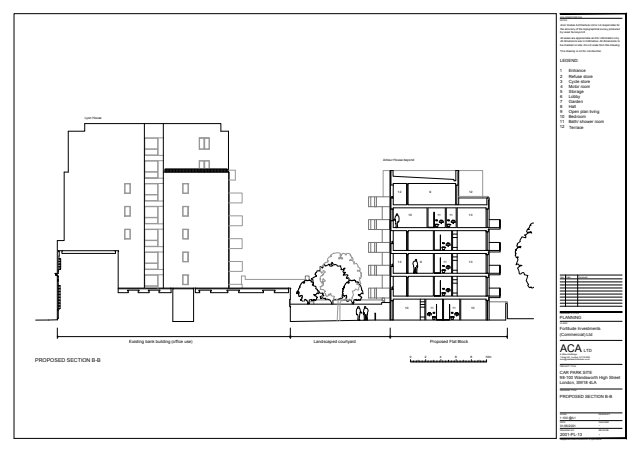
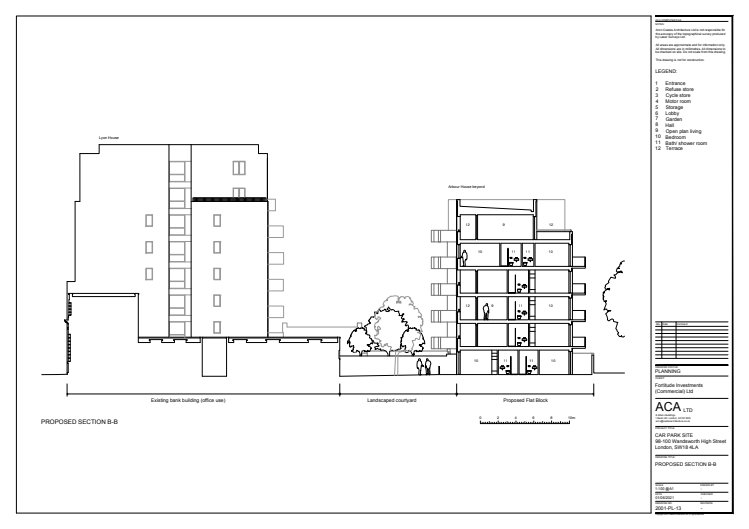
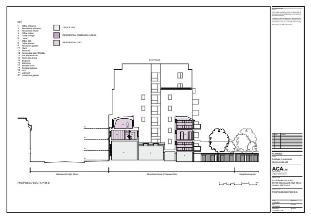
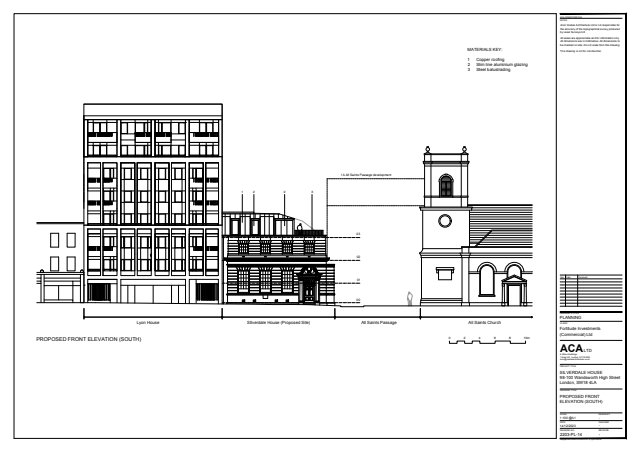
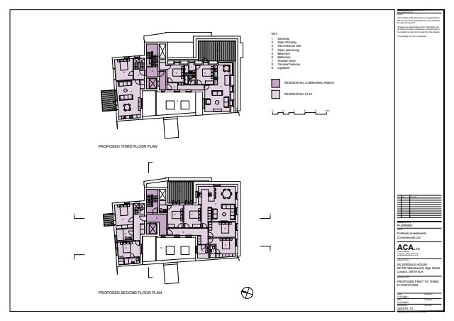
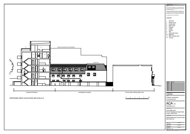
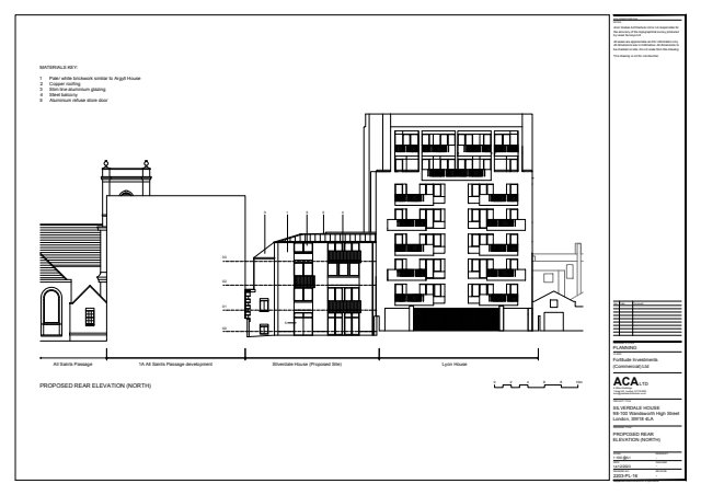
Two-phase mixed-use redevelopment on Wandsworth High Street comprising the retention and refurbishment of a locally listed former bank building, alongside a new six-storey building to the rear. The scheme provides ground-floor office accommodation with residential units above, responding sensitively to the conservation area context and the setting of nearby heritage assets.

The proposals balance the restoration of the historic street frontage with a contemporary residential addition, carefully managing massing, height and materiality to integrate with the surrounding townscape.


Role: Planning stage involvement, including preparation of planning drawings and support with the Design & Access Statement and Fire Safety Strategy submission.